Корпус пластиковый навесной IEK КМПн 1/2 IP20 Krepta 3 (2 модуля), белый
Корпуса пластиковые навесные IEK КМПн IP20, IP30 серии Krepta 3 предназначены для установки в них модульной аппаратуры распределения электроэнергии переменного тока напряжением до 400 В и частотой 50 Гц.
Монтируются внутри жилых, общественных, производственных и подсобных помещений.
Применяются для подключения небольших объектов (гаражи, дачи, подсобные помещения).
Используются также для организации временной проводки на стройках, при подключении бытовок.
Преимущества
- Современный дизайн и обтекаемые формы.
- Негорючие материалы.
- Простой и быстрый монтаж.
- Защита от хищений электроэнергии и от несанкционированного доступа к контактной группе (возможность опломбировки).
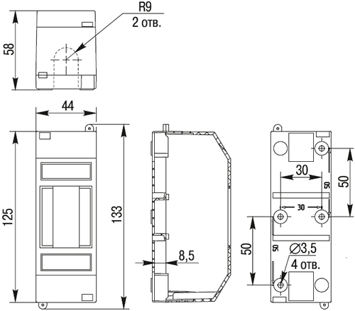
Размеры

Материалы и цвета
| Цвет | Белый (RAL 9016) |
| Материал | самозатухающий полимер |
Особенности конструкции
- Передняя панель с вырезом, без двери, крепится к основанию защелкиванием.
- Встроенная DIN-рейка.
- Суппорт для шин N/PE.
- Возможно установить несколько боксов в ряд.
- Введение кабеля через выламываемые отверстия.

Технические характеристики
| Артикул | MKP31-N-02-30-252 |
| Тип изделия | корпус распределительный |
| Исполнение | навесной |
| Количество рядов | 1 |
| Модульная ширина (количество модулей в ряду - шаг 18 мм) | 2 |
| Номинальное рабочее напряжение, В | АС 230 / 400 |
| Частота тока, Гц | 50 |
| Номинальный ток, А | 63 |
| Номинальное напряжение изоляции, В | 660 |
| Рассеиваемая мощность при номинальной нагрузке, Вт | 11,5 |
| Количество DIN-реек | 1 |
| Наличие дверцы | нет |
| Тип передней панели | с вырезом |
| Наличие монтажной платы | нет |
| Возможность расширения | нет |
| Статическая нагрузка, Н | 2,2 |
| Количество и диаметр отверстий для ввода кабеля | 2 х 18 мм |
| Температура эксплуатации, °C | -5... +40 |
| Относительная влажность воздуха, не более, % | 50* при +40°C |
| Степень защиты от пыли и влаги | IP20 |
| Климатическое исполнение и категория размещения | УХЛ3 |
| Степень защиты от внешнего механического воздействия | IK03 |
| Класс защиты от поражения электрическим током | II |
| Способ монтажа передней панели к основанию | защелкивание |
| Вес изделия, г | 50 |
* Допускается относительная влажность до 90% при +20 °C.
Преимущества
- Доставка по всей России
- Более 200 000 товаров в ассортименте
- Профессиональная консультация
- Кабель БЕЗ опасности
- Качество по ГОСТу
|
Бренд
|
IEK |
|
Высота, мм
|
133 |
|
Глубина, мм
|
58 |
|
СрокГарантии, мес
|
60 |
|
Количество рядов
|
1 |
|
Общее количество модулей
|
2 |
|
Серия
|
dd643413-6eb2-11ef-a582-00155da43c00 |
|
Тип изделия
|
Бокс |
|
Цвет двери
|
нет |
|
Ширина, мм
|
44 |
-
Зайдите на страницу товара и нажмите на кнопку «В корзину».
Далее можно продолжить покупки или перейти к оформлению заказа.
-
Перейдите в Корзину и нажмите «Перейти к оформлению».
Можно авторизоваться или оформить заказ без регистрации. Зарегистрированные пользователи могут:
- Отслеживать статус заказа
- Получать спецпредложения и промокоды на дополнительные скидки
- Укажите Ваши контакты: ФИО, телефон и e-mail.
- Выберите способ получения заказа (доставка или пункт самовывоза) и способ оплаты.
- Далее «Оформить заказ».
Готово: ваш заказ создан! По электронной почте или в личном кабинете Вы можете отслеживать статус заказа.
Теперь останется только ждать доставки и радоваться новой покупке!
Оплачивайте покупки удобным способом.
В нашем интернет-магазине доступно 3 варианта оплаты:
- Оплата наличными или картой при самовывозе в пункте выдачи заказов/магазине.
- Онлайн-оплата на сайте при оформлении заказа. Для совершения покупки система перенаправит вас на страницу платежного сервиса. Здесь необходимо заполнить форму по инструкции.
- Оплата по счету для юридических лиц. Оплата происходит после предоставления реквизитов для выставления счета. Покупатель получает счет на указанный e-mail.
Доступно 3 варианта доставки:
- Самовывоз из магазина. Список торговых точек для выбора появится в корзине. Для получения заказа обратитесь к сотруднику в кассовой зоне и назовите номер заказа.
- Доставка транспортной компанией СДЭК или Почтой РФ в отделение или постамат.
По всем возникающим вопросам можете позвонить нам на горячую линию:
Ежедневно с 8:00 до 20:00 по МСК
E-mail: help@kristall43.ru
Адрес: 610000, г. Киров, ул. Щорса, 68г, кабинет 3